What are oil-immersed transformers and dry-type transformers
May 04, 2023
What are oil-immersed transformers and dry-type transformers
Strictly speaking, the transformer mentioned here is called a distribution transformer, which is a transformer customized, purchased, and installed for use in distribution engineering projects, such as converting 10Kv voltage to 0.4Kv for ordinary household electricity. Dry type transformers and oil immersed transformers may be used in different situations due to their own composition and usage characteristics.
What is a dry type transformer?
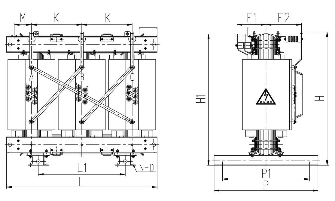
From the appearance, the most prominent feature is its overall red color, with the three insulator "pillars" being particularly prominent. Compared to oil immersed transformers, it generally refers to transformers whose iron core and coils are not immersed in any insulating liquid and are directly open to air, using air as the cooling medium. They mainly consist of iron cores, coils, temperature control systems, air cooling systems, and protective shells.
The main characteristics of dry type transformers are explosion-proof, flameproof, highly environmentally friendly, and easier to install near the load center of the power supply. In addition, the dry type transformer manufactured after optimizing the design scheme has the characteristics of lower noise, lower no-load loss, and better energy-saving effect. In addition, the volume and quality of the oil immersed transformer are also affected. Of course, this is not to say that "oil change" is not good, but rather that each has its own characteristics when used. Looking down at the oil immersed transformer.
What is an oil immersed transformer?
On many urban streets and industrial park roadside power poles, you often see the presence of oil-immersed transformers, which is also more common in rural areas. Moreover, oil transformers are also commonly used in complete sets of equipment such as box substations. So, oil-immersed transformers are often used for boosting, reducing, connecting, and distribution purposes. Oil immersed power transformers consist of iron cores, coils, insulation, oil tanks, etc. It is obvious that the oil transformer is insulated with transformer specific oil.
Among them, the iron core is the basic component of the oil immersed transformer, which consists of magnetic conductors and clamping fasteners; And the coil is the heart part, which is wound with electrolytic copper (aluminum) or oxygen free copper (aluminum) wire. We usually say that we want transformers with copper or aluminum cores, or all copper or all aluminum transformers.
The capacity value of the transformer is in kVA. When customers need to find a manufacturer to customize and purchase the transformer, they need to provide the supplier with specific specifications, including capacity, so that the transformer manufacturer can provide a faster and more accurate quotation. Generally speaking, the capacity of 10Kv oil immersed transformers ranges from 30kVA to 2500kVA; Dry type transformers can be classified into dozens of levels ranging from 30kVA to 3150kVA.
PHOTO






This product is usually customized.
We are a manufacturer and have a professional technical department that can design and provide solutions according to customer needs.
Please contact our sales personnel to obtain design drawings
Here are our customer examples for your reference
our Russian clients
Здравствуйте,
Просим выслать счёт или коммерческое предложение на покупку:
1. Трансформатор ТСЗЭ 2,5 кВА. Количество: 2 шт.
Номинальное линейное напряжение вторичной обмотки - 220В.
Доставка: самовывоз.
photo

IF NEED MORE INFORMATION,PLEASE FEEL FREE TO CONTACT US






