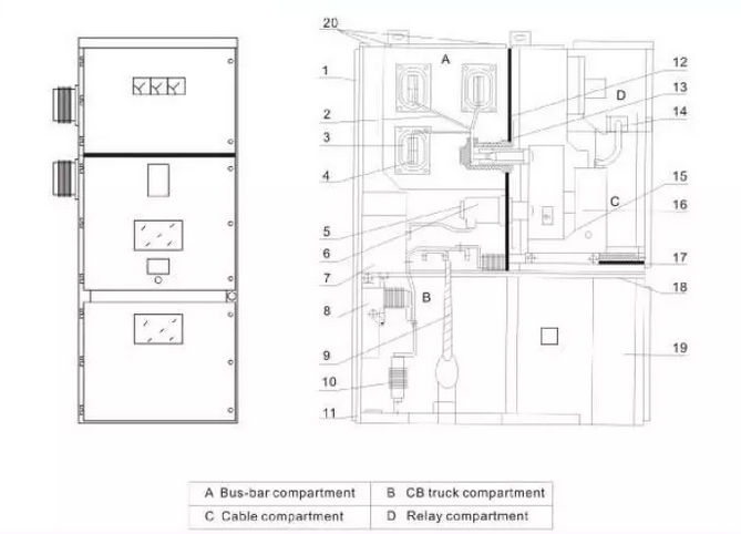
Switchgear Panel
KYN28A-24 high and low voltage switchgear is a new type of switchgear designed and developed by our company, which is used in the power distribution device of three-phase 24KV bus and single bus system. It has the characteristics of small footprint and compact structure design. Suitable for high...
Description
KYN28A-24 high and low voltage switchgear is a new type of switchgear designed and developed by our company, which is used in the power distribution device of three-phase 24KV bus and single bus system. It has the characteristics of small footprint and compact structure design. Suitable for high altitude, full of air temperature, humidity, creepage and discharge requirements of the three-phase AC power system 50HZ, used to receive and distribute power to control the circuit for detection and protection.
![]() | ![]() |

KYN28-24 switchgear panel technical parameter
Item | Unit | Data | |
Rated voltage | KV | 24 | |
Insulation level | Rated power-frequency withstand voltage(1min) | KV | 65/79(phase to earth/across open contacts) |
Rated lightening impulse withstand voltage | KV | 125/145(phase to earth/across open contacts) | |
Rated frequency | HZ | 50/60 | |
Rated main bus bar current | A | 630,1250,1600,2000,3150 | |
Rated branching bus bar current | A | 630,1250,1600,2000,3150 | |
4s Short-time withstand current(rms.) | KA | 16,20,25,31.5 | |
Peak withstand current(peak.) | KA | 40,50,63,80 | |
Protection degree | Enclosure:IP4X, Between compartment:IP2X | ||
Feature:
1. The metal-clad fully enclosed structure can prevent dust and small animals from entering.
2. Each compartment in the switchgear is separate and independent of each other.
3. The fast closing grounding switch is used for grounding and provides short-circuit current closing capability.
4. When the door panel is closed, all operations can be performed, including turning on and off the circuit breaker, inserting or pulling out the circuit breaker trolley, and turning on and off the grounding switch.
5. Reliable latch device can effectively prevent misoperation.
6. The VCB trolley is maintenance-free, and the equipped operating mechanism requires very little maintenance. The trolley has good interchangeability and it is very easy to replace the circuit breaker.
7. Through the front and back observation windows on the door panel, you can clearly see the switch status of the circuit breaker, the position of the trolley, the status of mechanical energy storage, the switch position of the grounding switch and the connection status of the cable end.
8. The secondary line is placed in a sufficient line shell, neat and easy to check.
9. The reliable five-prevention interlock can effectively prevent misoperation and entry into the energized carriage.


Certifications:


Packing & Delivery

Contact us:
Contact: Charles Du
Mobile: +86 18639199897
E-mail: Fengyuan800@outlook.com
The best choice for the electrical industry! ! !
If you want to know more about our products, please contact us.
Thank you for choosing Fengyuan Power as your reliable partner. Please believe that we will create a better future together!
Hot Tags: switchgear panel, China, manufacturers, suppliers, customized, indoor Switch Cabinet, power distribution equipment, Fixed Type switchgear, High Voltage Metal-Enclosed Switchgear, Armoured Removable Enclosed Switchgear, voltage switchgear









