DRY 3 Phase 30.3KV MV Transformer
Three-phase Epoxy-resin Dry-type Transformer is in conformity with the standard of IEC726, GB/T10228-1997, with features of low loss, compact and lightweight, low noise level, damp-proof, high mechanical strength, flame resisting, strong overload ability, and low partial discharge quality. They are applicable to power transmission and distribution systems, especially to heavy load centers and places with special fire protection requirements.
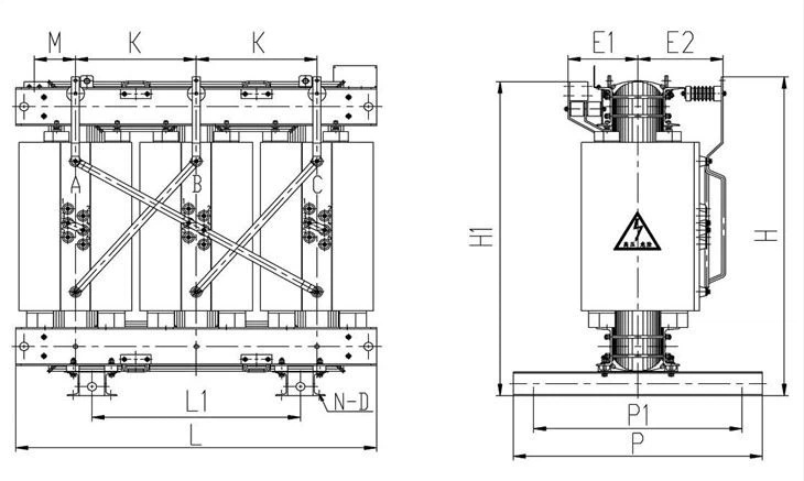
Description
DRY 3 phase 30.3KV MV transformer
Our SC(B) series epoxy resin cast dry transformer is cast under vacuum with thin insulating bands automatically.
Reliable Structure
The coil is reinforced with glass fiber and cast under vacuum with filler epoxy resin. It has good mechanical properties, is free of crack and inner bubble and has low local discharge, high reliability, and long service life.
The high-and low-voltage systems are cast under vacuum, thus the coil will not absorb moisture; the clamps of core are subjected to corrosion-resistant treatment and it may run under high temperature or other serious environments.
Excellent Materials
Flame retardancy , explosion-proof and no environmental contamination. The insulating materials in the coil such as glass fiber are self-extinguishing and they will not cause fire by the arc resulted from short-circuit . The resin will not generate toxic or harmful gas under high temperature.
Gas duct is embedded inside it to enhance the radiation power and over-load capacity. Low loss and low noise. The core is lapped with 45 full-miter? and the step-type lamination effectively improves distribution of magnetic flux at core corners, and greatly reduces the no-load loss and the nose level.
It highly withstands short-circuit and lightning impact.Small in volume, light in weight, safe in running and free of maintenance. As per users’ requirements the transformer may be provided with casing and blower fan.
Technical Data
| Model | Rated power capacity | Voltage Ratio | Vector group(connection) | Loss (Watt) | Voltage Impedance % | Dimension(Lx WxH) | Net weight(kgs | |||
| Rated primary voltage (KV) | Tapping range | rated secondary voltage (V) | No load loss | Full load loss | ||||||
| SCB11-30/10 | 30 KVA | 3.3 KV 6.0 KV 6.6 KV 6.3KV 10KV 11KV 13.2KV 13.8KV 15KV 20KV 22KV 24KV 30KV 33KV 35KV 36KV | ± 2 X 2.5% | 380V , 400 V , 415V 430V 440V etc | Dyn11 , Yyn0...etc | 171 | 665 | 4 | 680x400x686 | 300 |
| SCB11-50/10 | 50 KVA | 243 | 941 | 690x400x686 | 360 | |||||
| SCB11-75/10 | 75 KVA | 320 | 1300 | 730x450x796 | 500 | |||||
| SCB11-100/10 | 100 KVA | 360 | 1492 | 730x500x816 | 600 | |||||
| SCB11-125/10 | 125 KVA | 423 | 1748 | 780x600x950 | 700 | |||||
| SCB11-160/10 | 160 KVA | 486 | 2014 | 950x650x1124 | 850 | |||||
| SCB11-200/10 | 200 KVA | 558 | 2394 | 990x650x1165 | 950 | |||||
| SCB11-250/10 | 250KVA | 648 | 2613 | 1020x650x1207 | 1100 | |||||
| SCB11-315/10 | 315 KVA | 792 | 3287 | 1050x750x1320 | 1250 | |||||
| SCB11-400/10 | 400 KVA | 873 | 3781 | 1100x800x1450 | 1550 | |||||
| SCB11-500/10 | 500 KVA | 1044 | 4636 | 1140x800x1430 | 1850 | |||||
| SCB11-630/10 | 630 KVA | 1206 | 5577 | 1250x800x1500 | 1900 | |||||
| SCB11-800/10 | 800 KVA | 1368 | 6603 | 6 | 1330x800x1500 | 2200 | ||||
| SCB11-1000/10 | 1000 KVA | 1584 | 7714 | 1400x960x1640 | 2750 | |||||
| SCB11-1250/10 | 1250 KVA | 1881 | 9206 | 1450x960x1690 | 3300 | |||||
| SCB11-1600/10 | 1600 KVA | 2205 | 11144 | 1560x960x1930 | 4000 | |||||
| SCB11-2000/10 | 2000 KVA | 2988 | 13728 | 1680x960x1930 | 4800 | |||||
| SCB11-2500/10 | 2500 KVA | 3240 | 16312 | 1720x1010x1950 | 5500 | |||||







CERTIFICATE




EXHIBITION

COMPANY OVERVIEW

PACKING&DELIVERY


FAQ
Q5 : Is OEM/ODM available?
A: Yes, it is! Our products can be Customized. We have design and engineer teams,we can customize products according to customers' drawing or requirements.
Q6 : You are manufacturer or trading company?
A: We are factory, As a 100% professional manufacturer with 20 year's manufacturer experience, we could produce products according to customers' requirements and we could also control the quality of products 100%.
Q7 : Can the price be negotiated?
A: Yes, the price is negotiable. It can be changed according to your quantity or package
Q8 : How about inspection?
A: We have the whole inspection system from raw material to end products include temperature rise test,salt spraying test conductor type test,mechanical life test.
Q9 : What is payment terms?
A: T.T, Paypal,Western Union,Alibaba trade assurance and L/C is acceptable. 30% T/T in advance ,70% balance before shipment.
MORE VIDEO
https://www.facebook.com/bob.niu.35/
Youtube
www.youtube.com/channel/UC5IP4dL0UTQG4fgAOa3UhWA
https://twitter.com/FengyuanE
Welcome to inquiry
Contact information:
Jiyuan Fengyuan Electrical Equipment Co., Ltd
Sales Department
Contact person:Mr Charles Du
E-mail:fengyuan800@outlook.com
Mobile:+8618639199897(Available for whatsapp,wechat,skype)
Add:Huling industrial zone,jiyuancity,henan province,China
TEL:+86-0391-2180800
FAX:+86-0391-2180818
Hot Tags: dry 3 phase 30.3kv mv transformer, China, manufacturers, suppliers, customized, Amorphous core distribution transformers, 500 KVA transformer, 3000kVA Dry Type Transformer, 11kv Dry Type Transformer, Full Range of Dry type Transformer, dry amorphous alloy transformer












